70-LUVUN RIVITALOASUNNON MÄRKÄTILAREMONTTI, ESPOO

70-luvun rivitaloasunnon märkätilat remontoitiin putkiremontin yhteydessä kokonaisvaltaisesti. Valitsimme asiakkaani kanssa hänelle sopivimmat, yksilölliset ratkaisut kohteen kahteen märkätilaan sekä kuivaan wc-tilaan. Valintojen poiketessa kauttaaltaan putkiurakan peruslaatutason ratkaisuista, yksityiskohtainen suunnittelu sekä selkeä dokumentaatio työmaalle olivat avainasemassa onnistuneessa remontissa.

Suunnittelun vastuualueet:

❤︎ täydellinen märkätilaremontti asunnon kahteen kylpyhuoneeseen; katot, lattiat, seinät, lattiakaivot, vesikalusteet, valaistus, kalusteet, varusteet

❤︎ 3D-mallinnus, työpiirustukset / työmaaohjeistukset

❤︎ asiakkaan konsultointi valinnoissa ja yksityiskohdissa

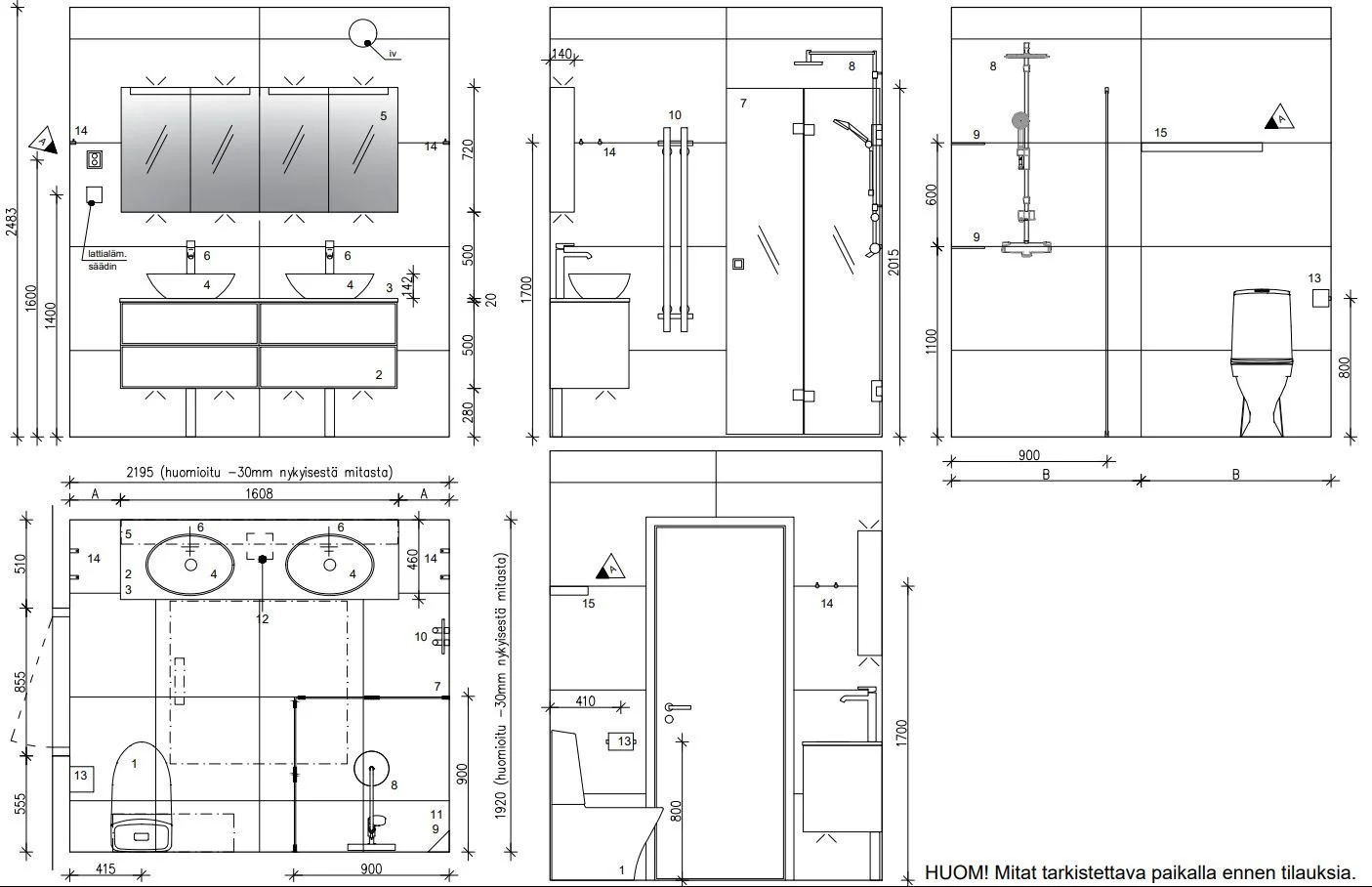
Mitä tehtiin?

Toivottua tyyliä ja tunnelmaa etsittiin alkuun havainnollisten 3D-kuvien avulla. 3D-mallissa oli helppo kokeilla erilaisia tilaratkaisuja sekä väriyhdistelmiä, joiden pohjalta asiakas löysi toivomansa väri- ja materiaaliyhdistelmät. Mallin perusteella tehtiin valintoja sopivista laatoista sekä vesikalusteiden ja kalusteiden väreistä ja -malleista. Suunnittelu eteni laattojen, kalusteiden ja varusteiden tarkemmasta tyypityksestä yksityiskohtaisten työpiirustusten laatimiseen mitoituksineen, sijoituksineen ja ladontaohjeineen. Työmaavaiheessa konsultoin asiakasta yksityiskohdista sekä työmaalla eteen tulevien kysymysten osalta.

Asiakkaan kokemus:

“Katariina auttoi meitä kylpyhuoneiden sisustussuunnittelussa, ja kokemus oli erittäin positiivinen. Hänen tekemänsä 3D-kuvat auttoivat hahmottamaan kokonaisuuden selkeästi, ja yksityiskohtaiset piirustukset toimivat erinomaisena ohjeistuksena urakoitsijalle. Katariina kuunteli toiveitamme tarkasti ja yhdisti ne ammattitaitoonsa niin, että lopputulos oli juuri meidän näköisemme. Yhteistyö hänen kanssaan oli sujuvaa ja miellyttävää alusta loppuun – voimme lämpimästi suositella häntä kaikille, jotka kaipaavat apua kylpyhuoneiden suunnitteluun.”

★★★★★

Sovitaan MAKSUTON kartoitustapaaminen ❤︎

OTA YHTEYTTÄ
Edellinen
Edellinen

Paritalon kokonaisvaltainen remontti, Espoo

Seuraava
Seuraava

Remontti, 60-luvun kerrostaloasunto, Helsinki