70-LUVUN RIVITALOASUNNON KYLPYHUONE, ESPOO

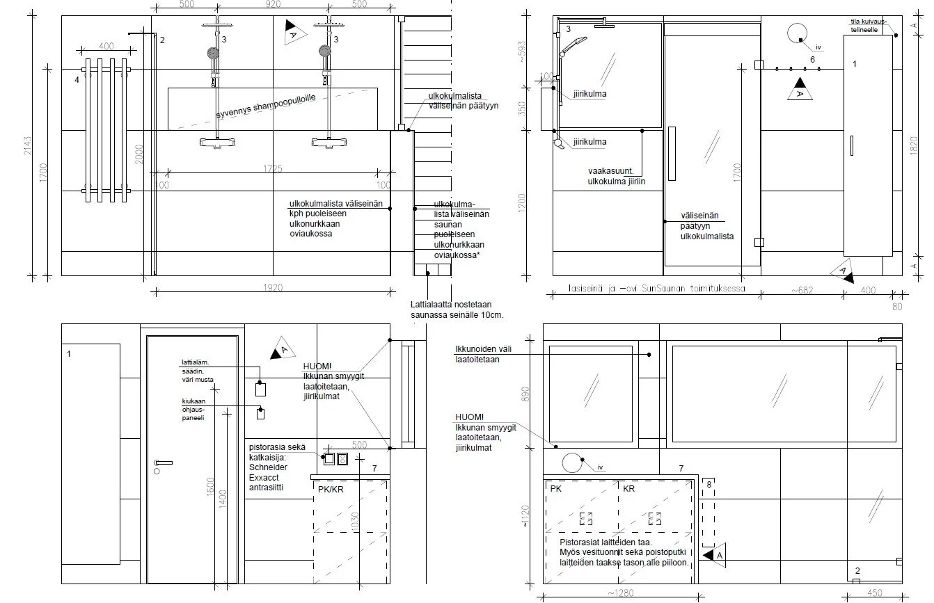
70-luvun rivitaloasunnon märkätilat remontoitiin putkiremontin yhteydessä kokonaisvaltaisesti. Valitsimme asiakkaani kanssa hänelle sopivimmat, yksilölliset ratkaisut kohteen kahteen märkätilaan sekä kuivaan wc-tilaan. Valintojen poiketessa kauttaaltaan putkiurakan peruslaatutason ratkaisuista, yksityiskohtainen suunnittelu sekä selkeä dokumentaatio työmaalle olivat avainasemassa onnistuneessa remontissa.

Asunnon kylpyhuone, jossa tumma marmorikuvioinen laattaseinä

Asiakaskokemus:

“Katariina auttoi meitä kylpyhuoneiden sisustussuunnittelussa, ja kokemus oli erittäin positiivinen. Katariina kuunteli toiveitamme tarkasti ja yhdisti ne ammattitaitoonsa niin, että lopputulos oli juuri meidän näköisemme. Yhteistyö hänen kanssaan oli sujuvaa ja miellyttävää alusta loppuun – voimme lämpimästi suositella häntä kaikille, jotka kaipaavat apua kylpyhuoneiden suunnitteluun.”

Sovitaan MAKSUTON kartoitustapaaminen ❤︎

Edellinen
Edellinen

Vanha Kauppahalli, Helsinki

Seuraava
Seuraava

Kylpyhuone, Espoo